2024

Palazzina Sant’Agostino

Dimensione: 450 mq

Funzione: Residenziale

Progetto: Palazzina di quattro unità immobiliari

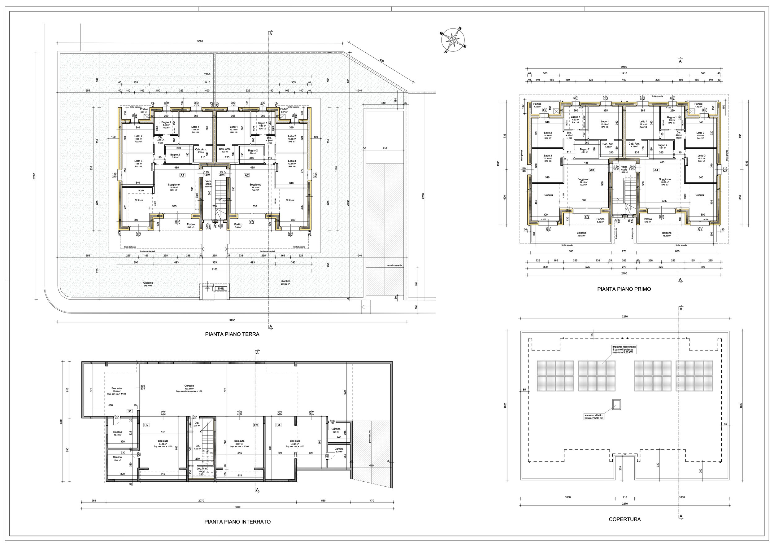
Località: Azzano San Paolo, Bergamo

Il progetto

La palazzina è costituita da quattro unità immobiliari divise su due piani fuori terra e un piano interrato adibito a box auto. La modernità dell’edificio si lega perfettamente allo stile urbano del quartiere circostante.

La peculiarità del fabbricato è l’elevata efficienza energetica garantita dai sistemi di isolamento termico e acustico, dall’impianto di climatizzazione di ultima generazione e dalla presenza di impianti fotovoltaici.

Lo studio si è occupato della progettazione architettonica ed energetica, della direzione lavori e della sicurezza in cantiere.

Indietro
Indietro

Villa CMZ

Avanti
Avanti

Ville M.A.