2024

VILLE M.A.

Dimensione: 400 mq

Funzione: Residenziale

Progetto: Progettazione per nuova costruzione di 4 ville con box all’americana

Località: Azzano San Paolo, Bergamo

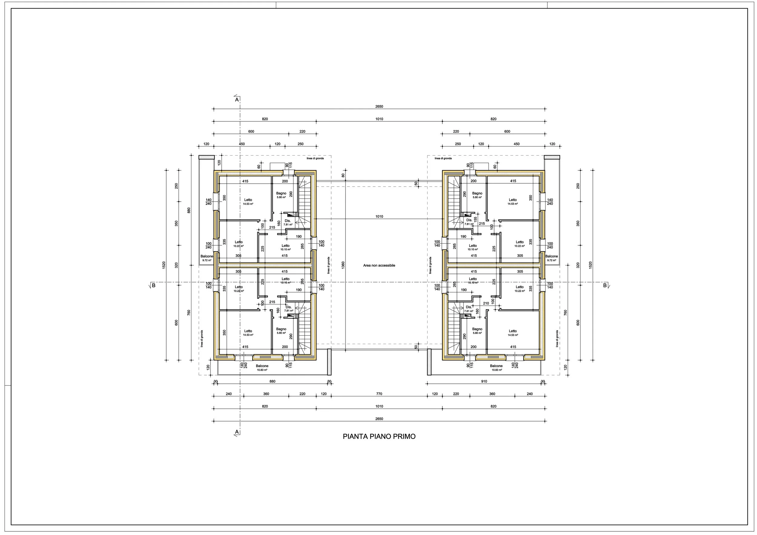
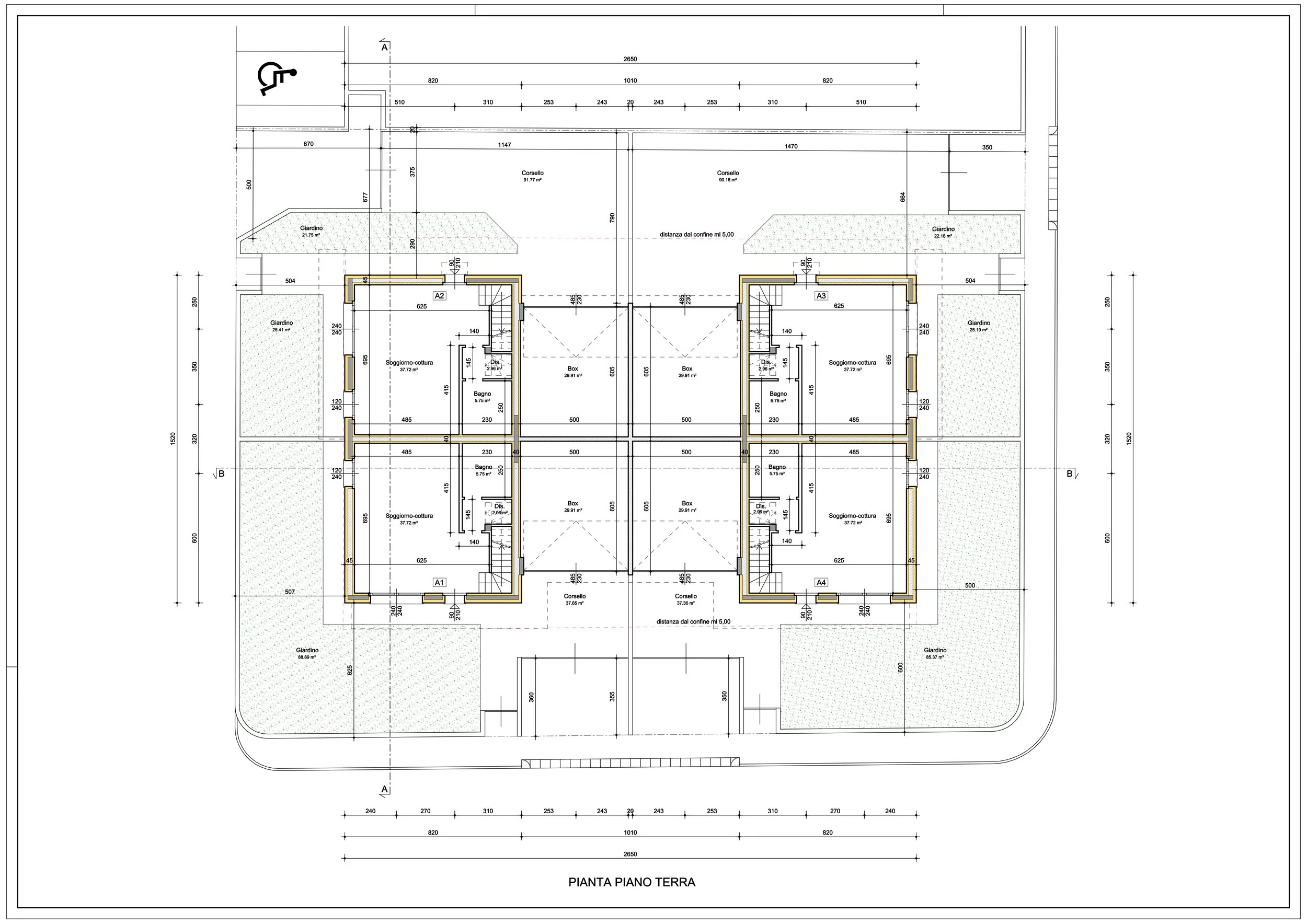
Il progetto

Progettazione di due villette bifamiliari ad alta efficienza energetica. Le unità immobiliari si sviluppano su due piani, il piano terra adibito a zona giorno mentre il piano primo a zona notte con tre camere da letto e balconi.

La peculiarità del fabbricato sono i box all’americana con due posti auto e l’indipendenza delle quattro unità immobiliari.

E’ stata prestata particolare attenzione alla coibentazione dell’involucro e alla produzione di riscaldamento e acqua calda sanitaria da fonti rinnovabili per almeno una quota pari al 50%, grazie all’installazione di pompe di calore e fotovoltaici.

Lo studio si è occupato della progettazione architettonica, della direzione lavori, della sicurezza in cantiere e del catasto.

Indietro
Indietro

Sant'Agostino