2021

Villa CMZ

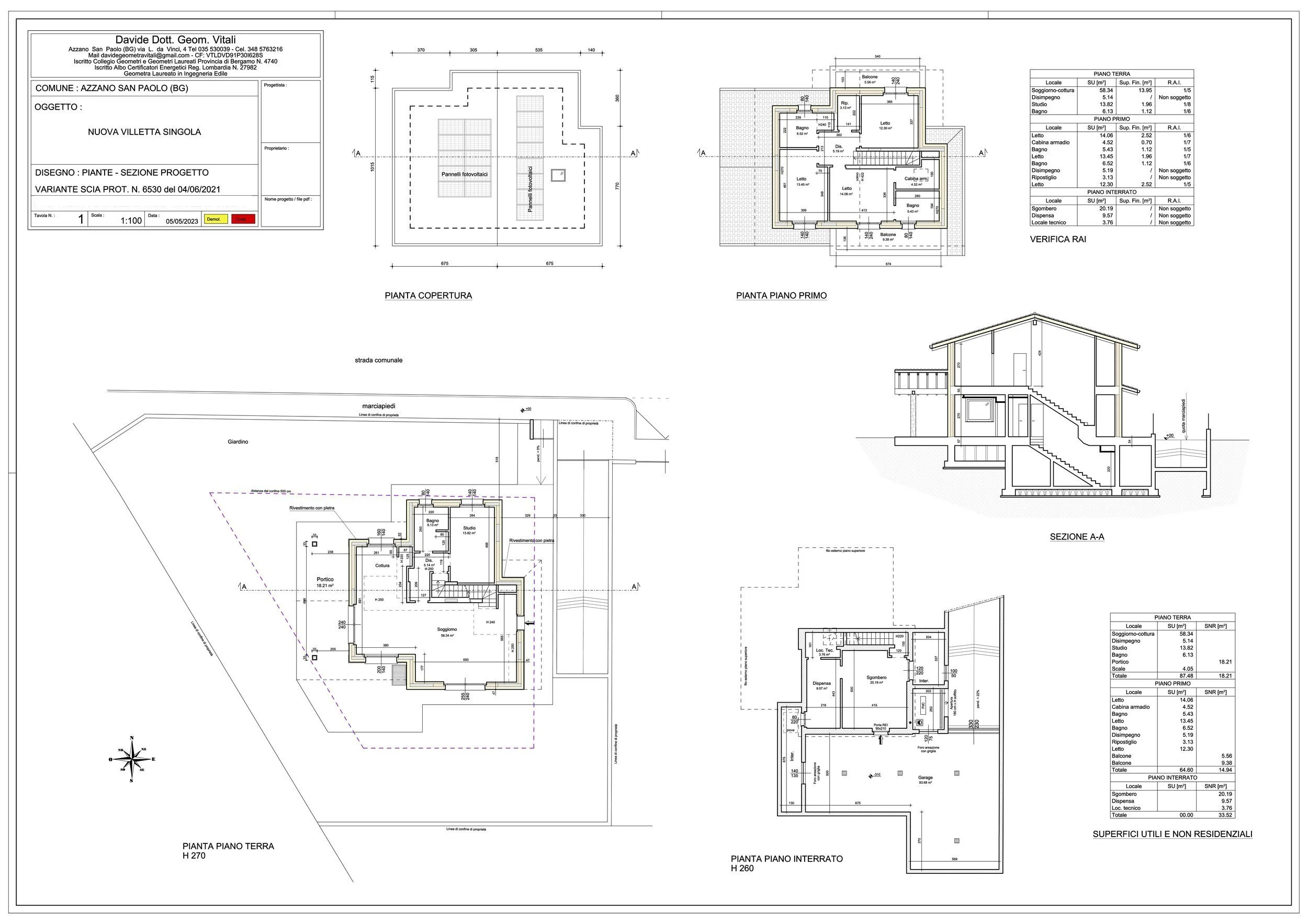
Dimensione: 300 mq

Funzione: Residenziale

Progetto: Villa monofamiliare

Località: Azzano San Paolo, Bergamo

Il progetto

La villa si sviluppa su due piani residenziali: al piano terra è situata la zona giorno con ampio salotto mentre la zona notte con tre camere da letto, due bagni e cabina armadio si sviluppa al piano primo.

Questo progetto è nato da zero è ha direttamente coinvolto lo studio in ogni fase della progettazione: dalla preliminare all’esecutiva. Le esigenze dei committenti, con i quali è stato possibile instaurare un livello di dialogo proficuo, sono state soddisfatte con attenta cura per ogni dettaglio costruttivo.

In particolare, grazie all’elevata qualità della progettazione energetica, la villa ha raggiunto la certificazione A4 NZEB (Nearly Zero Emission Building).

Avanti
Avanti

Sant'Agostino